Все мастера и бригады
Украина

Нужны мастера?

Создайте заявку

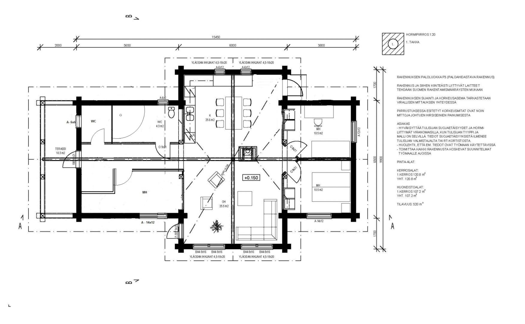
Фундамент для бома из бруса

Требуется выполнить работы по устройству фундамента для одноэтажного дома из бруса (107м2) План роилагается. Срок начала работ март-апрель. Место работ с.Дударков.

Предложения просьба присылать на email: dalemax_timoshenko@i.ua

Украина, Киевская область, г. Борисполь

Тендер открыт

с 16.02.2011 по 23.02.2011

Бюджет

Прикрепленный файл: скачать

Заказчик

Еврогрупса

Всего тендеров: 1

Зарегистрирован:
26.10.2010 г.

Контактные данные

Тендер закрыт.

Вы не можете ответить на тендер

Тендер закрыт или заказчик нашел исполнителя

Рейтинг: 16
Отзывы: 0

шлифовка бетонных полов стяжек,сдам в аренду оборудование для шлифовки бетонных полов 0666660707 0686909988 александр

17.02.2011 г. в 09:36

Рейтинг: 44
Отзывы: 0

Строительная компания ТСК «ИВИС» специализируется на проектировании и строительстве деревянных домов срубов. Так как процесс проектирования сруба, его производства и сборки от разработки проекта до последнего гвоздя проводится полностью в нашей компании, мы гарантируем качество каждой нашей работы. Помимо деревянных домов, мы занимаемся проектированием и строительством бань из сруба, колыб, деревянных домов, беседок, навесов и многого другого, что можно создать из дерева.

Цена от – 1700 грн/м2 по полу с учетом стройматериала. Лицензия. т.: 093 4759789

17.02.2011 г. в 11:52

Рейтинг: 37
Отзывы: 0

Лазерный строительный инструмент для бетонных работ. Точность,качество + простота и удобство, а так же контроль выполненых работ.

Ярослав

(095) 284-81-19

18.02.2011 г. в 12:48

Рейтинг: 44
Отзывы: 0

Добрый день!

ТСК "ИВИС"

г.Киев, ул. Старосельськая, д.1-Д.

т.: 093 4759789.

Предлагаем устройство монолитного фундамента согласно Вашему чертежу.

Работы: розбивка по осям, земельные, опалубка, армирование, бетонирование - 290 грн. м.куб.

Доставка стройматериала со склада в комплексе согласно заявки - цены значительно ниже "Епицентра".

Проектирование и строительство деревянных домов, срубов, бань, беседок, навесов.

От заготовки леса (сосна) до выполнения работ "под ключ".

Своя пилорама, цеха.

Цена - 1700 грн. м.кв. общей площади с учетом стройматериала.

Лицензия.

Предоставление выполненых работ.

Гарантия качества.

С Уважением, Петр!

20.02.2011 г. в 07:02

Рейтинг: 55
Отзывы: 0

Здравствуйте!Наша бригада опытных специалистов выполняет все виды работы по устройству фундамента.Готовы выполнить ваш заказ.Работаем аккуратно и качественно.Цены приемлемые.Работаем без посредников. АЛЕКСАНДР.тел.80961459924. 0664464111.

Комментарии отсутствуют.
Обратите внимание
на рейтинг мастеров
Чем выше рейтинг мастера, бригады или компании, тем выше вероятность получения качественных работ.
Выбирая PRO мастера вы получаете гарантию качества от портала Omastere.
Похожие тендеры