Все мастера и бригады
Украина

Нужны мастера?

Создайте заявку

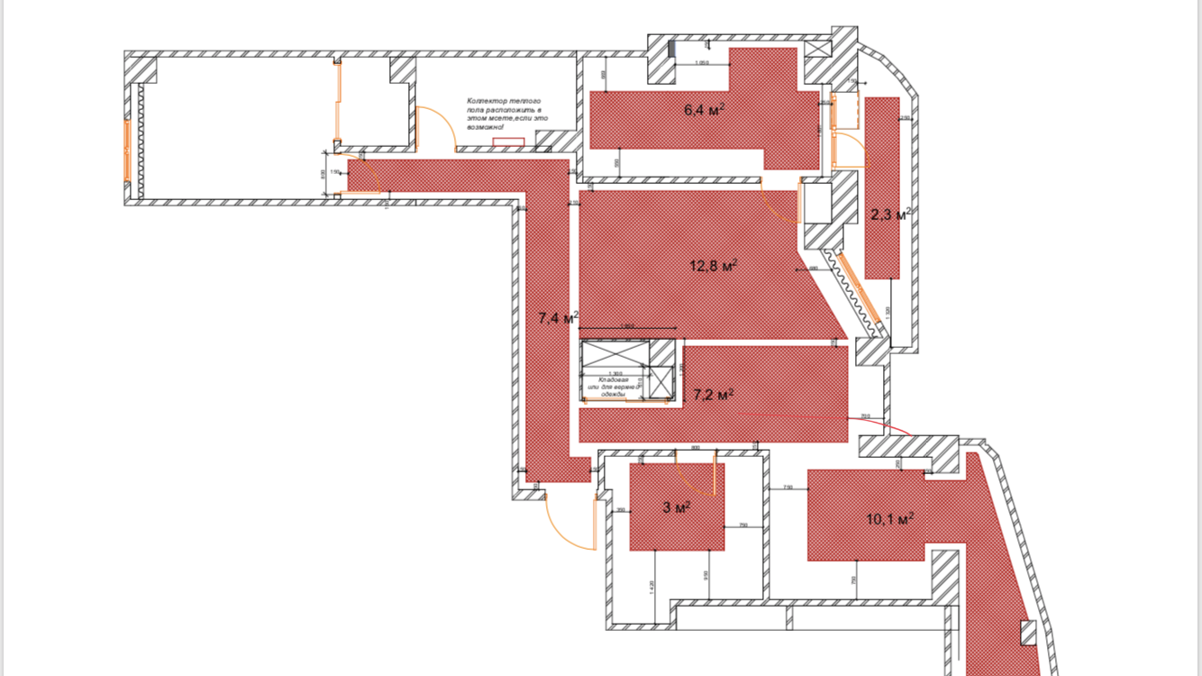
Монтаж водяного тёплого пола «под ключ» со стяжкой и машинная штукатурка стен.Харьков

Необходимо в квартире смонтировать систему водяного тёплого пола площадью около 55м2 и сделать стяжку площадью около 70м2.план прилагаю

Украина, Харьковская область, г. Харьков

Тендер открыт

с 5.12.2018 по 4.01.2019

Бюджет

Прикрепленный файл: скачать

Заказчик

Николай

Всего тендеров: 1

Зарегистрирован:
05.12.2018 г.

Контактные данные

Тендер закрыт.

Вы не можете ответить на тендер

Тендер закрыт или заказчик нашел исполнителя

Рейтинг: 120
Отзывы: 0

Предложение по цене:
1 грн
Стоимость выезда на объект:
бесплатно
Смогу приступить к работе:
05 декабря 2018 г.

0950016709 звоните,договоримся

07.12.2018 г. в 02:24

Рейтинг: 83
Отзывы: 0

Предложение по цене:
17000 грн
Стоимость выезда на объект:
бесплатно
Смогу приступить к работе:
12 декабря 2018 г.

звоните обсудим работы сроки и цены 0664701681,0988948273

Комментарии отсутствуют.
Обратите внимание
на рейтинг мастеров
Чем выше рейтинг мастера, бригады или компании, тем выше вероятность получения качественных работ.
Выбирая PRO мастера вы получаете гарантию качества от портала Omastere.
Похожие тендеры