Все мастера и бригады
Украина

Нужны мастера?

Создайте заявку

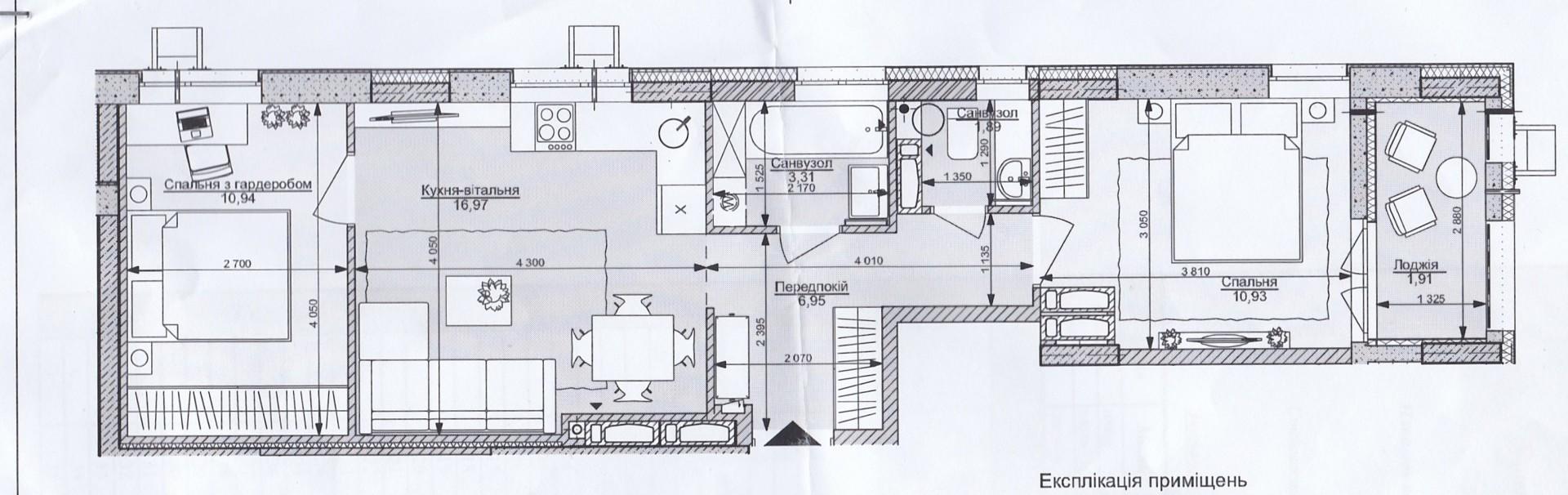
комфорт таун

Работа:

1.устройство канализации, сантехнич.работы;

2.пол (есть цементно-песчанная подготовка по слою звукоизол. материала)-ламинат в спальных комн., кухня и службы- плитка;

3.стены - звукоизоляция и обои;

4.натяжные потолки;

5.электрика;

Украина, Киевская область, г. Киев

Тендер открыт

с 18.10.2018 по 18.10.2018

Бюджет

100000

Прикрепленный файл: скачать

Заказчик

Григорий

Всего тендеров: 1

Зарегистрирован:
18.10.2018 г.

Контактные данные

Тендер закрыт.

Вы не можете ответить на тендер

Тендер закрыт или заказчик нашел исполнителя

Комментарии отсутствуют.
Комментарии отсутствуют.
Обратите внимание
на рейтинг мастеров
Чем выше рейтинг мастера, бригады или компании, тем выше вероятность получения качественных работ.
Выбирая PRO мастера вы получаете гарантию качества от портала Omastere.
Похожие тендеры