Все мастера и бригады
Украина

Нужны мастера?

Создайте заявку

Необходимо отопление

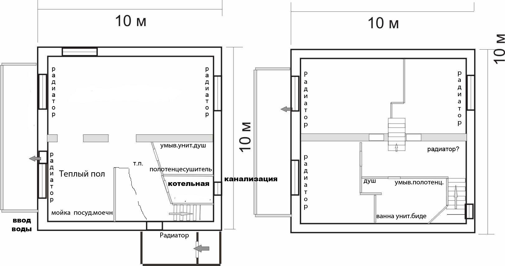
Дом находится в с. Лебедевка Вышгородский р-н, отпаливаемая площадь 220 кв.м. 3-этажа, прекрытия по деревянным балкам. Построен из газобетона 30 см утеплен снаружи ватой - 5 см. Хочу сделать Т.П. на кухне и в коридоре всего 18 м.кв. и радиаторы. На первом этаже пол черновой бетонная плита 20 см. Газа у меня нету, для отопления приобрел ТТ Viadrus U22 C6 34 кВт, и для поддержки штанов эл.котел Kospel 8 кВт. Необходимо подружить котлы, сделать отопление, ГВС, каналью. Хочу простую недорогую рабочую схему, без миллиона вентилей, трубочек, гребенок и прочей бесполезной фигни. Жду предложений по срокам и стоимости работ.

http://www.stroimdom.com.ua/forum/picture.php?albumid=2806&pictureid=30977

http://www.stroimdom.com.ua/forum/picture.php?albumid=2806&pictureid=30979

http://www.stroimdom.com.ua/forum/picture.php?albumid=2806&pictureid=30976

http://www.stroimdom.com.ua/forum/picture.php?albumid=2806&pictureid=30981

Украина, Киевская область, г. Киев

Тендер открыт

с 13.11.2011 по 20.11.2011

Бюджет

Прикрепленный файл: скачать

Заказчик

Вячеслав Лутченко

Всего тендеров: 1

Зарегистрирован:
13.11.2011 г.

Контактные данные

Тендер закрыт.

Вы не можете ответить на тендер

Тендер закрыт или заказчик нашел исполнителя

Рейтинг: 19
Отзывы: 0

При наличии всех материалов примерно 10 дней. Стоимость после принятия решения о разводке.С ув.Андрей тел. 097-917-63-25

Рейтинг: 76
Отзывы: 0

Наша основная специализация-это монтаж отопления , водоснабжения и канализации

квартир , загородных домов , офисов.

На материалы:KAN,VALTEC,REHAU,RIFENG ,HERZ скидки..

Гарантия на материал от 1-го года до 10-ти лет!!!!!!

Точка водоснабжения+канализация 300гр,точка отопления 300гр,тёплый пол 50гр.м2,штроба 50гр. м/п.Обвязка топочной 2000гр.

тел.(044)383-98-90

тел.(094)928-68-90

E-Mail:aqua-therm@i.ua

www.aqua-therm.io.ua

13.11.2011 г. в 01:54

Рейтинг: 14
Отзывы: 0

Выполним следущие работы. Сантехника, отопление,канализация, монтаж отопительной системы. Сварочные и отделочные работы. А также КРЫШИ ЛЮБОЙ СЛОЖНОСТИ И МОДИФИКАЦИИ (ОГРОМНЫЙ ОПЫТ В ЭТОМ НАПРАВЛЕНИЕ, КОНСУЛЬТАЦИЯ И ГАРАНТИЯ НА ВЫПОЛНЕННУЮ РАБОТУ). Качество работ на высшем уровне. Звоните 098 837 59 73 067 835 67 80Виктор. 095 412 66 29 Яков.

Рейтинг: 10
Отзывы: 0

Монтажник с многолетним опытом. Объекты в Вышгородском районе (Осещина, Лебедивка). Цены - рыночные. готов выехать на место и предоставить расчетные данные по Вашему объекту. 067 547 13 51 Иван Петрович.

Рейтинг: 36
Отзывы: 0

Здраствуйте,вышлите контакт на filistovich.anat@mail.ru,готов предоставить вам предложение по вашему обьекту.

Рейтинг: 50
Отзывы: 0

Наше предприятие занимается внедрением (включая поставку и монтаж) систем теплообеспечения, автономного и резервного питания, используя альтернативные источники энергии, а также системами уличного, архитектурного освещения и освещения помещений на основе энергосберегающих технологий.

Комплекты нашего оборудования полностью удовлетворят любые потребности в отоплении, освещении и электроснабжении квартир,кафе, магазинов, строительных городков, кемпингов, туристических лагерей, баз отдыха, фермерских хозяйств, дачных участков, коттеджей, бассейнов, теплиц, производственных цехов и других объектов. Данные системы также очень актуальны из-за постоянного увеличения тарифов на традиционные энергоносители.

Предлагаемая система отопления OWEL :

• в 2-2,5 раза дешевле других автономных систем отопления;

• в 3-4 раза экономичней центрального или газового отопления;

• доступность;

• эффективность(0.18Квт для отопления 3м2);

• не требует специальных разрешительных документаций;

• практически нет необходимости в обслуживании;

• не имеет традиционных теплоносителей;

• большие сроки эксплуатации (от 27 лет и выше);

• экологически чистое;

• защита от постоянных перепадов напряжения и отключения электросети;

• сетифицированность системы;

• применение систем автономного электроотопления OWEL увеличивает престиж зданий и в перспективе, способствует повышению его ликвидности;

• быстрые сроки монтажа;

Все вопросы Вы можете задать по телефонам:(056)745-05-33,(067)562-15-92

Более подробную информацию Вы можете узнать на нашем сайте: http://dtehnoinvest.ua24.biz/

Рейтинг: 10
Отзывы: 0

Готовы с Вами сотрудничать. Проэкт и смету делаем бесплатно. Помощь в подборе материала. Хорошие скидки! Обращаться по телефону 0673059324, Игорь.

14.11.2011 г. в 07:53

Рейтинг: 72
Отзывы: 0

звоните договоримся Компания otoplenie-santehnika оказывает сантехнические услуги и услуги по отоплению. 044-361-59-52, 066-431-98-38

E-mail: otoplenie-santexnika@ukr.net

15.11.2011 г. в 09:24

Рейтинг: 46
Отзывы: 0

Здравствуйте!

Специалист с опытом работы произведёт монтаж отопления, водопровода, канализации в вашем

доме.

Помогу в подборе материала. Цены и материал обговариваются в самом начале, согласовывая вместе с вами объём работ.

тел.(067)705-24-16

15.11.2011 г. в 10:05

Рейтинг: 15
Отзывы: 0

Рады бы были с вами сотрудничать, звоните и мы вместе найдем недорогое и практичное решение с учетом всех ваших пожеланий.

Тел. 501 10 60 е-мей Zhuck1987@yandex.ru

С уважением, "Проксима" ТОВ.

17.11.2011 г. в 07:21

Рейтинг: 72
Отзывы: 0

(Хочу простую недорогую рабочую схему, без миллиона вентилей, трубочек, гребенок и прочей бесполезной фигни.)

Здравствуйте,половину этой фигни вам все равно надо будит поставить,без гребёнок у вас полы работать не будут.

Комментарии отсутствуют.
Обратите внимание
на рейтинг мастеров
Чем выше рейтинг мастера, бригады или компании, тем выше вероятность получения качественных работ.
Выбирая PRO мастера вы получаете гарантию качества от портала Omastere.
Похожие тендеры