Все мастера и бригады
Украина

Нужны мастера?

Создайте заявку

Нужны специалисты для возведения фундамента.

Как только потеплеет и подсохнет грунт, собираюсь приступить к стройке дома общая площадь около 290кв.м. Участок находится в КС районе. с. Новое. Есть вагончик для строителей.

На данном этапе интересует подрядчик для возведения монолитного ленточного фундамента.

Необходимо:

1. Земельные работы.

2. Фундамент.

3. Закладные канализации, воды, прочее..

4. Обратная засыпка.

5. Черновой пол по грунту.

Т.е. все чтоб быть готовым к этапу возведения стен.

Как ориентир для оценки объемов:

объем фундамента 60-66 кубов.

общий вес арматуры около 2 т.

Предпочтение отдам бригаде со своей опалубкой. (очень не хочется покупать ненужный лес). При написании предложения уточняйте этот момент.

Просьба писать конкретное предложение а не просто скидывать прайс.

Т.е. Перечень предполагаемый работ для реализации этого этапа и их стоимость. Объем работ уточняем на основании готового проекта.

Наличие рекомендаций и готовый работ приветствуется.

Проект еще в разработке но к весне его закончат.

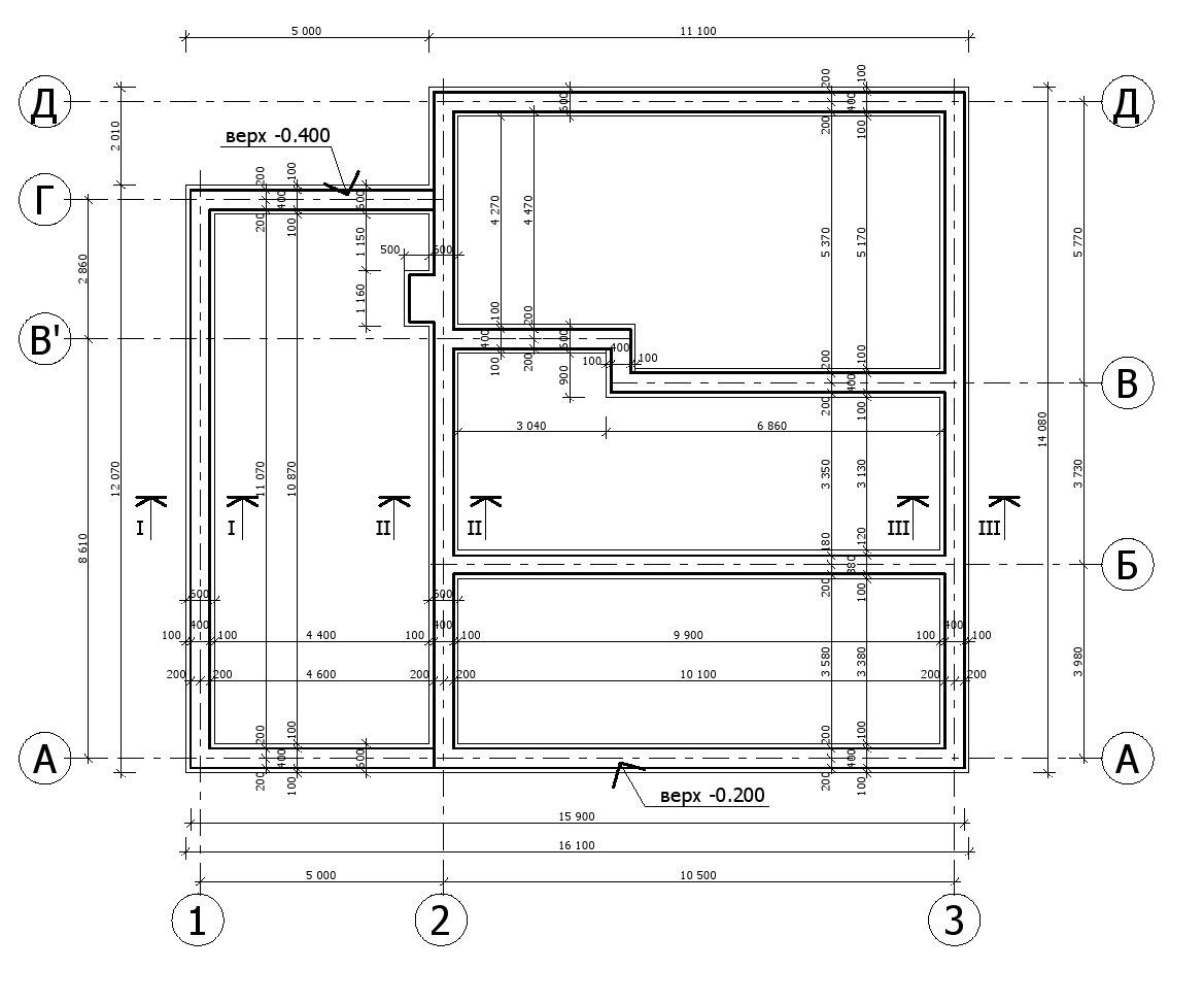
Схема фундамента прилагается.

после возведения фундамента строительство не остановится. Т.ч. можно сразу присылать расценки на кладку газоблока 400мм и рядового кирпича.

Ваши предложения присылайте на почту.

Украина, Киевская область, г. Киев

Тендер открыт

с 24.02.2012 по 2.03.2012

Бюджет

Прикрепленный файл: скачать

Заказчик

Domikoff

Всего тендеров: 4

Зарегистрирован:
22.06.2010 г.

Контактные данные

Тендер закрыт.

Вы не можете ответить на тендер

Тендер закрыт или заказчик нашел исполнителя

Рейтинг: 54
Отзывы: 0

Добрый день,

Очень заинтересовало ваше предложение.

Готовы выполнить в полном объеме. Уточните пожалуиста : Вас интересует стоимость работ, или работы с материалами.

Большой опыт работ в строительстве фунламентов,домов из дерева, кирпича, бетона, газобетона.

Некоторые работы можете просмотреть в моем профиле.

С уважением

Руслан

099 138 08 09

arbat.info@i.ua

24.02.2012 г. в 10:36

Рейтинг: 5
Отзывы: 0

Здравствуйте.

Сбросьте єл.адр.СМСкой на тел.067 310 2 304

И будет Вам предлжение,спасибо.

С ув.Олег

24.02.2012 г. в 11:45

Рейтинг: 16
Отзывы: 0

ТОВ «ХОТЕЙ І КО». Ліцензія АВ №591946.

Website: www.vashdim.com

Телефон: 067-305-10-20 Олександр

1. Земельные работы. 70грн - м3

2. Фундамент. 400грн - м3

3. Закладные канализации, воды, прочее..

4. Обратная засыпка. 35грн -м3

24.02.2012 г. в 11:56

Рейтинг: 5
Отзывы: 0

Наша компанія давно на ринку будівництва, є великий досвід роботи та висококваліфіковані спеціалісти.

Ми готові в любий час.

097-970-52-57 Назарій.

Рейтинг: 25
Отзывы: 0

О Компании

Cтроительная компания "Укрспецмонтаж Инвест"

основана профессионалами строительной отрасли в 1995 году. Сегодня – это стабильная и надежная компания с многолетним опытом и современными взглядами в будущее. Строительная компания "Укрспецмонтаж Инвест" – многопрофильное проектно-строительное предприятие, осуществляющее полный спектр общестроительных и специальных монтажных работ: от комплексного проектирования к сдаче объекта "под ключ", что дает возможность сопровождать cтроительство объектов любой сложности.

Мы проводим следующие виды работ: новое строительство, реконструкцию, капитальный ремонт, переоснащение, модернизацию, демонтаж зданий и сооружений. Компания выполняет функцию Генерального Подрядчика в сфере жилищного, офисного и производственного строительства. На все работы, которые проводятся компанией, есть соответствующая государственная Лицензия.

Рейтинг: 29
Отзывы: 0

кровля.профи.керамическая черепица.полный комплекс работ с доставкой качественных материалов,древесины(карпаты),опыт 12 лет зап.Германия,портфолио обьектов.

0673421901 Андрей

Рейтинг: 15
Отзывы: 0

звоните есть своя опалубка и т.д. 0986952163

Рейтинг: 38
Отзывы: 0

Добрый день.Будьте добры скинуть свой емейл.Вышлем просчет работ,цены.

С Уважением.

25.02.2012 г. в 05:43

Рейтинг: 28
Отзывы: 0

Готовы выполнить ваш обьем по не доригим ценам 0506835555 договоримся в любом случае

Рейтинг: 5
Отзывы: 0

Наш опыт- ваш комфорт,от проэкта под ключ.

Рейтинг: 5
Отзывы: 0

Наш опыт- ваш комфорт,от проэкта под ключ.0930382786

Рейтинг: 69
Отзывы: 0

Бригада киевлян с огромным опытом профессионально произведет все работы от фундамента до отделки. Есть свое оборудование и инструмент. Заканчиваем объект на Осокорках рекомендации заказчика. Игорь 0672340414.

Рейтинг: 26
Отзывы: 0

Стоимость работ по обустройству фундамента - земельные, заливка бетона с миксера, армировка - 20-22 тысячи с нашей опалубкой. Тел.:(099)37-3-211.

Рейтинг: 69
Отзывы: 0

ТЕПЛО,ГИДРО,ХОЛОДО Изоляция Пенополиуретан.КОММЕРЧЕСКОЕ ПРЕДЛОЖЕНИЕ!

Мы предлагает Вам услуги по нанесению бесшовной тепло -, холодо- и гидроизоляции. Материал используют для тепловой изоляции элементов конструкций (бытовых, производственных, жилищных конструкций – стен, полов, потолка, кровли), бесшовной гидроизоляции (крыш жилищных, промышленных сооружений, фундаментов, и при ремонте поврежденных кровель ), а также для теплоизоляции холодильных, морозильных, сушильных и термокамер, контейнеров, трубопроводных водоснабжения, емкостей, пассажирских та грузовых судов . Изготовление изделий для теплоизоляции.

Пенополиуретан – это инновация в мире утепления. На сегодняшний день пенополиуретан является экологически безопасным и огнестойким материалом (об этом свидетельствуют ТУ, СЭС, пожарный протокол). Теплоизолятор очень легок и прочен, обладает самым низким коэффициентом теплопроводности и самым малым водопоглощением в сравнении с другими утеплителями, а также имеет целый ряд положительных эксплуатационных характеристик о которых Вы сможете узнать, посетив наш сайт http://pbm.com.ua/.

Наша компания также занимается продажей оборудование для напыления и заливки пенополиуретанового утеплителя по НИЗКИМ ЦЕНАМ.

Лучшие модели пеногенераторов UZN 8/10 предлагаем в аренду на ВЫГОДНЫХ УСЛОВИЯХ. Действуют программы бесплатного обучения.

Реализуем сырье для производства пенополиуретана от лучших зарубежных производителей Германии (Basf ), Китая(Yantai Wanhua), России. МЫ – КОМАНДА ПРОФЕССИОНАЛОВ!!!. Всегда будем рады с Вами сотрудничать. Обращайтесь!!!

Наши контакты:0675070605Максим. http://pbm.com.ua/ maxim8@bigmir.net

27.02.2012 г. в 10:27

Рейтинг: 17
Отзывы: 0

Бетон П1, П2, П3, П4, гарцовка, цементные растворы. ЖБИ в ассортименте, плиты перекрытия, фундаментные блоки,перемычки, кольца колодцев, лестничные марши, Доставка по Киеву и Киевской области. Низкие цены от производителя. Звоните, будем рады взаимовыгодному сотрудничеству!

г. Киев ул.Пшеничная, 2

www.zbv-1.kiev.ua

zbv-1@ukr.net

407-94-42;067-442-11-57

“Завод будівельних виробів-1”

Рейтинг: 44
Отзывы: 0

бригада 5 чоловік без посередників тел.80979680216

27.02.2012 г. в 05:23

Рейтинг: 19
Отзывы: 0

Добрый день!

С нашими работами можете ознакомиться на сайтах: www.ARHSTROY.KIEV.UA www.ARHSTROY.COM.UA .

Конкретное предложение дать по те вводным данным которые указаны невозможно, нужно ознакомиться с проэктом.

В среднем поставить фуддамент, возвести стены - 250-300$ м2. Все остальное сугубо от ваших предпочтений.

Звоните будет приятно пообщаться 050 353 60 64

Рейтинг: 6
Отзывы: 0

ООО "ОЛИМП-ИНВЕСТ"

Наша компания готова выполнить комплекс робот по укладке фундамента.Лицензия, специалисты, качество, умеренные цены, гарантия. Выедем на местность, рассмотрим предложение, будем договариваться.Звоните 0969481693 (Олег Борисович).

Комментарии отсутствуют.
Обратите внимание
на рейтинг мастеров
Чем выше рейтинг мастера, бригады или компании, тем выше вероятность получения качественных работ.
Выбирая PRO мастера вы получаете гарантию качества от портала Omastere.
Похожие тендеры