Все мастера и бригады
Украина

Нужны мастера?

Создайте заявку

Проектирование инженерных систем

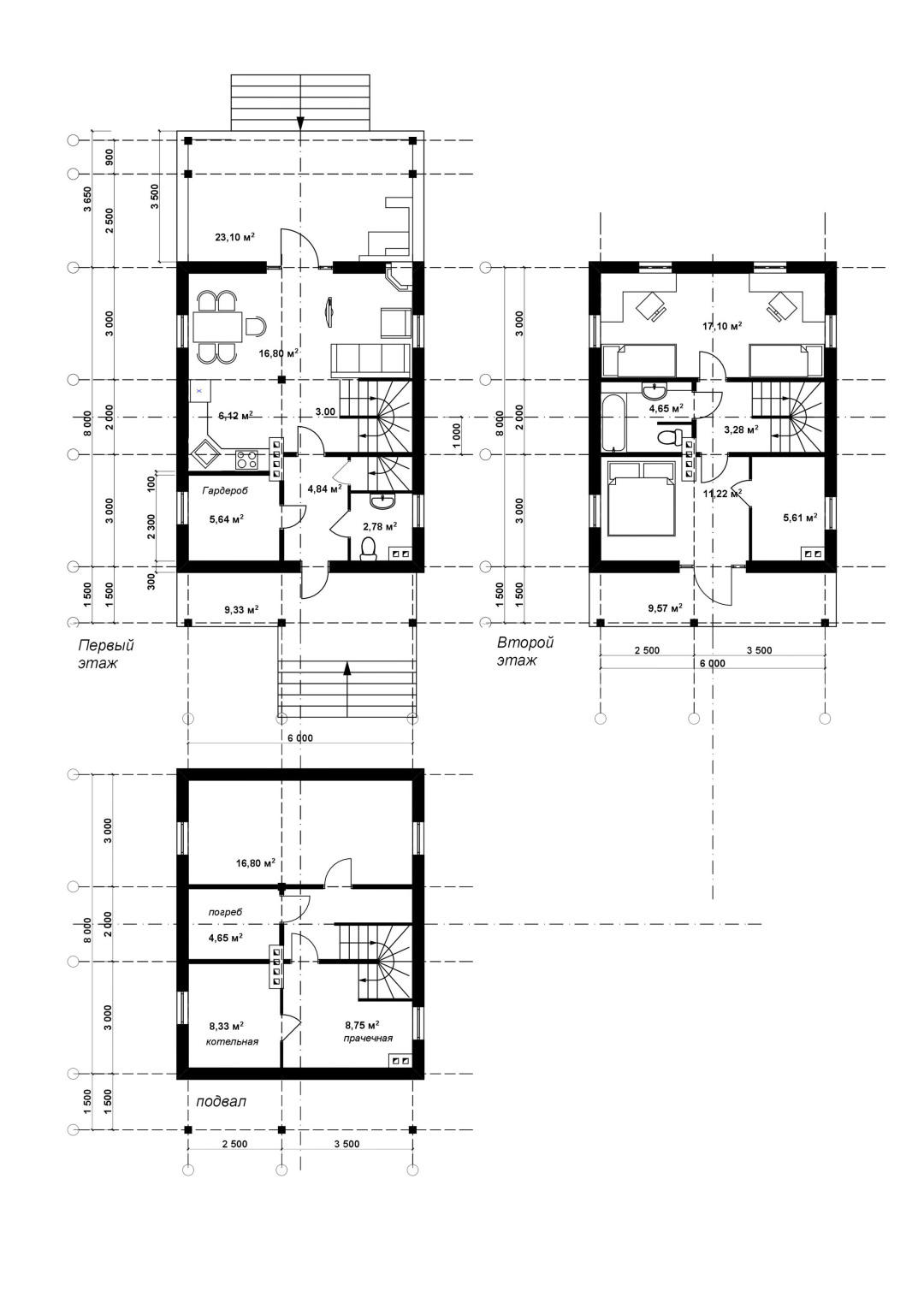
Требуется спроектировать электроснабжение, слаботочку, видеонаблюдение, водопровод, канализацию, отопление ( тепловой насос) для индивидуального коттеджа общей площадью 120 м.кв.

Украина, Киевская область, г. Киев

Тендер открыт

с 29.08.2016 по 28.09.2016

Бюджет

Прикрепленный файл: скачать

Заказчик

АРХИКОМ

Всего тендеров: 34

Зарегистрирован:
18.04.2012 г.

Контактные данные

Тендер закрыт.

Вы не можете ответить на тендер

Тендер закрыт или заказчик нашел исполнителя

Рейтинг: 83
Отзывы: 0

Предложение по цене:
14000 грн
Стоимость выезда на объект:
500 грн
Смогу приступить к работе:
31 августа 2016 г.

Добрый вечер!

Стоимость все проектных работ перечисленных выше , включая в себя ведомость рабочих чертежей , ссылочных материалов , спецификацию материалов и оборудования, пояснительные записки по каждому разделу составит 13000-14000 гр

С уважением Николай тел: 0507581762

Примеры моих работ
Комментарии отсутствуют.
Обратите внимание
на рейтинг мастеров
Чем выше рейтинг мастера, бригады или компании, тем выше вероятность получения качественных работ.
Выбирая PRO мастера вы получаете гарантию качества от портала Omastere.
Похожие тендеры