Все мастера и бригады
Украина

Нужны мастера?

Создайте заявку

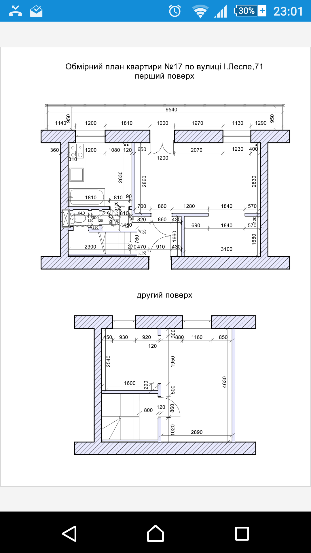
Ремонт квартиры двухуровневой (дюплекс) в сталинке.

Общая площадь 61м2. Балкон 10 метров. Замена полов, лестницы, столярки, сантехники, установка системы кондиционирования и пр.. Требуется комплексный подход с указанием этапов и сроков выполнения работ.

Украина, Киевская область, г. Киев

Тендер открыт

с 14.07.2015 по 13.08.2015

Бюджет

250000

Прикрепленный файл: скачать

Заказчик

Игорь

Всего тендеров: 2

Зарегистрирован:
14.07.2015 г.

Контактные данные

Тендер закрыт.

Вы не можете ответить на тендер

Тендер закрыт или заказчик нашел исполнителя

Рейтинг: 104
Отзывы: 0

Предложение по цене:
1 грн
Стоимость выезда на объект:
150 грн
Смогу приступить к работе:
15 июля 2015 г.

Здравствуйте!

Мы выполняем весь комплекс сантехработ, от 350 грн./точка.. Есть коллеги которые выполнят строительные отделочные и электромонтажные работы. Все профессионалы, многостаночников универсалов нет!!! Работаем всеми видами материалов на ваш выбор, инструментом укомплектованы, киевляне.

Гарантия на выполненные работы 24 месяца. Качество и скидки на материалы гарантируем!

Смета составляется после осмотра объекта. Дмитрий Коваленко. 067 7442371; 066 6371672; mail: dima_k70@mail.ru

Примеры моих работ

Рейтинг: 52
Отзывы: 0

Предложение по цене:
1000 грн
Стоимость выезда на объект:
бесплатно
Смогу приступить к работе:
15 июля 2015 г.

Добрый день. Готов приехать на объект и по месту все обсудить. Выполним быстро,качественно, по лояльным для Вас ценам. 0932967556 Илья

14.07.2015 г. в 02:40

Рейтинг: 56
Отзывы: 0

Предложение по цене:
100 грн
Смогу приступить к работе:
14 июля 2015 г.

Предлагаю предварительно созвониться и обговорить ремонт. Вышлите пожалуйста проект с указанием замены или установки оборудования.

Буду рада сотрудничеству.

Лариса

Рейтинг: 48
Отзывы: 0

Предложение по цене:
1 грн
Стоимость выезда на объект:
бесплатно
Смогу приступить к работе:
15 июля 2015 г.

Здравствуйте!

Компания "Промжитлобуд" выполнит Ваш заказ качественно,в срок. Любая форма оплаты.

+380965908505

yaremchuk205@ukr.net

Пришлите,пожалуйста свою почту и мы предоставим Вам полную смету.

С уважением Ярослав.

Рейтинг: 185
Отзывы: 0

Предложение по цене:
1 грн
Стоимость выезда на объект:
бесплатно
Смогу приступить к работе:
20 июля 2015 г.

Здравствуйте...меня зовут Игорь...мы занимаемся всеми видами строительно-отделочных работ,включая электрификационные и сантехнические работы.

Работаем в сфере внутренней отделки уже более 13 лет,гарантируем максимально возможное качество работ,оперативность,порядочность и аккуратность.В наличии весь необходимый инструмент.

При желании можем показать квартиры в Киеве,где мы работали раньше..можно будет оценить качество работ воочию,а также пообщатся с нашими предыдущими заказчиками на предмет наших как профессиональных,так и человеческих качеств.

Сейчас есть квартиры в ЖК Комфорт Таун и на Севастопольской площади.Также можно посмотреть квартиру в ЖК Печерский квартал и в Вышгороде,на Кургузова…Все перечисленные обьекты мы делали под ключ осенью-зимой…заказчики пока там не вьехали еще…ключи находятся у меня…так что посмотреть на качество нашей работы можем практически в любое время.

Также есть дом под Обуховом,построенный нами с ноля в прошлом годуу…сделана и внутрянка и фасад и забот.Тоже можно посмотреть на качество.

Имеем богатый опыт работ по дизайн-проэктам.

По расценкам:

-маячная штукатурка стен 80 грн/м2

-кладка перестенков с газоблока 80 грн/м2

-монтаж подвесных прямых одноуровневых гипсокартонных потолков 80 грн/м2

-шпаклевка потолков 50 грн/м2

-шпаклевка стен 45 грн/м2

-стеклохолст на потолок 45 грн/м2,на стены 35 грн/м2

-покраска потолков 30 грн/м2,стен 25 грн/м2

-укладка плитки на стены 180 грн/м2,на пол 160 грн/м2

-поклейка обоев 40 грн/м2

-укладка ламината 40 грн/м2

-монтаж припотолочного багета (с покраской),приполового плинтуса 25 грн/м.п.

-точка электрики 85 грн/точка (прокладка провода входит в стоимость)

-точка разводки воды 380 грн

-точка канализации 180 грн

Выезд к вам на обьект,обмер и просчет детальной поэтапной сметы работ - бесплатно.Попутно составим Вам перечень и стоимость необходимого строительного материала.

Если Вас заинтересовало - звоните 096 687 10 10

Наша почта – porastroit@ukr.net

Сайт – porastroit.com.ua

14.07.2015 г. в 04:41

Рейтинг: 33
Отзывы: 0

Предложение по цене:
1 грн
Стоимость выезда на объект:
бесплатно
Смогу приступить к работе:
20 июля 2015 г.

Добрый День. Мы выполняем полный комплекс услуг по ремонту квартир, домов...Работаем как по договору так и без. По договору как юридическое лицо. Форма расчета: наличная и безналичная (на усмотрения заказчика).Есть лицензия на выполнения строительных работ. Предоставляем гарантию на выполненных работы. Для обсуждения всех пожеланий и детали выедем на объект в удобное для вас время, смета будет готова на следующий день. Цены адекватные. 095-664-09-61 (Александр), aleksandr.f@list.ru

14.07.2015 г. в 04:56

Рейтинг: 39
Отзывы: 0

Предложение по цене:
240000 грн
Смогу приступить к работе:
15 июля 2015 г.

Цена заманчивая необходимо просмотреть и уточнить виды работ, если имеетса дизайн высылайте

14.07.2015 г. в 09:48

Рейтинг: 49
Отзывы: 0

Предложение по цене:
1 грн
Стоимость выезда на объект:
100 грн
Смогу приступить к работе:
20 июля 2015 г.

Готовы выполнить Ваш заказ! Выполняем полный комплекс строительных работ, есть возможность просмотра объектов в работе (Печерск), тел. 097-236-90-28 Андрей Сергеевич! dekorstone@ukr.net, www.karma-bud.com.ua

Рейтинг: 139
Отзывы: 0

Стоимость выезда на объект:
бесплатно
Смогу приступить к работе:
15 июля 2015 г.

Добрый день! Можем выполним хорошо и быстро. Нас 4 человека. Не вижу ваш номер телефона. Наберите на номер 0932057959. Зовут Дмитрий. Или ответьте по адресу 2057959@ukr.net.

Когда можно приступать или приехать посмотреть, пообщаться и обсудить условия работы?

15.07.2015 г. в 07:19

Рейтинг: 96
Отзывы: 0

Предложение по цене:
1 грн
Стоимость выезда на объект:
150 грн
Смогу приступить к работе:
21 июля 2015 г.

И сможем и поможем 066 45 15452

С ценами и примерами работ сожмите ознакомится на сайте: http://comfo-home.com.ua

Рейтинг: 55
Отзывы: 0

Предложение по цене:
1 грн
Стоимость выезда на объект:
бесплатно
Смогу приступить к работе:
16 июля 2015 г.

Сантехмонтаж 350 грн./место

Электромонтаж от 60 грн/точка

063 566 36 43

Вячеслав

15.07.2015 г. в 10:47

Рейтинг: 46
Отзывы: 0

Предложение по цене:
1 грн
Стоимость выезда на объект:
бесплатно
Смогу приступить к работе:
16 июля 2015 г.

Здравствуйте !

Бригада Мастеров, Выполняем комплексные ремонты квартир и офисов качественно, пунктуально и недорого с адекватной ценой на все виды работ.

Будем рады выполнить ваш ремонт.

моб. (095)8244590.

e-mail: brigadababy100@gmail.com.

С уважением, Эдуард.

Рейтинг: 38
Отзывы: 0

Предложение по цене:
1 грн
Стоимость выезда на объект:
бесплатно
Смогу приступить к работе:
15 июля 2015 г.

Добрый день, Игорь! Меня зовут Иван. Бригада Киев-Бровары 097 822 48 15 Готов встретится на объекте или выслать смету, если Вы вышлете мне свой e-mail

Рейтинг: 122
Отзывы: 0

Предложение по цене:
250000 грн
Стоимость выезда на объект:
бесплатно
Смогу приступить к работе:
31 июля 2015 г.

Выполним весь комплекс ремонтно-строительных работ.Своя производственная база,кузня,столярка.Качественный подход к работе.Адекватные цены для качественного ремонта.Договор.Смета.Гарантии.

Расценки на работы
15.07.2015 г. в 02:01

Рейтинг: 40
Отзывы: 0

Предложение по цене:
1111 грн
Стоимость выезда на объект:
1 грн
Смогу приступить к работе:
15 июля 2015 г.

Наша компания занимается управлением строительными проектами. На тендерной основе подберем самые выгодные предложения по материалам и строительным услугам, рассчитаем материалы, проконтролируем работы на объекте!

Наш опыт показал что наши услуги позволят сэкономить 25-30% средств.

Рейтинг: 59
Отзывы: 0

Стоимость выезда на объект:
бесплатно
Смогу приступить к работе:
31 июля 2015 г.

Добрый день выполняем ремонт квартир под ключ!В бригаде 3 человека все без вредных привычек!Фото работ смотрите в альбоме и на сайте все работнике в профиле мастер Сергей Юрковец!По цене всегда можно договориться!Если Вам интересно такое предложения обращайтесь по телефону 0509393817, 0961320550 Сергей!

Рейтинг: 78
Отзывы: 0

Предложение по цене:
250000 грн
Стоимость выезда на объект:
бесплатно
Смогу приступить к работе:
27 июля 2015 г.

Доброго дня. Якщо ваша заявка ще актуальна, звертайтесь. Виконуемо всі види робіт. Без

шкідливих звичок. Бригада з 3-х чоловік. Можна звернутися за рекомендацією до людей яким робили ремонти. Ціни помірні. Працюемо без посередників.

тел.067-109-74-55 Олександр

Рейтинг: 89
Отзывы: 0

Предложение по цене:
250000 грн
Стоимость выезда на объект:
150 грн
Смогу приступить к работе:
16 июля 2015 г.

Если взял объект, то доведу до сдачи без перебежек.

Ценю Ваше и свое время.

067-457-73-69

095-628-59-41

Артем

Примеры моих работ

Рейтинг: 45
Отзывы: 0

Предложение по цене:
1 грн
Стоимость выезда на объект:
бесплатно
Смогу приступить к работе:
18 июля 2015 г.

Добрый день. Опытные сантехники выполним заказ доступно, качественно, договор,гарантия. Поможем с выбором хорошего и недорогого материалов. При необходимости делаем рабочий проект.

097 672 52 13 Александр, 099 769 95 70 Дмитрий markovdn52@gmail.com

Рейтинг: 50
Отзывы: 0

Предложение по цене:
10000 грн
Стоимость выезда на объект:
1 грн
Смогу приступить к работе:
19 июля 2015 г.

Здравствуйте! Могу сделать дизайн интерьера и мебели в вашу квартиру.Также авторский надзор при выборе и помощь в писке всех материалов! Мониторинг рынка и выбор наилучших цен!Практика показывает, что профессиональный мониторинг позволяет с экономить порядка 25% от всей суммы денег потраченных на ремонт!За эти деньги можно как минимум обставить квартиру! А также свое производство дизайнерской мебели высокого качества! На все вопросы отвечу по телефону 050 177-345-3 Александр. Спасибо!

19.07.2015 г. в 09:02

Рейтинг: 99
Отзывы: 0

Предложение по цене:
500 грн
Стоимость выезда на объект:
бесплатно
Смогу приступить к работе:
21 июля 2015 г.

Поместимся в бюджет и качество будет на высшем уровне. 067 403 91 29 или 063 254 03 07

Рейтинг: 37
Отзывы: 0

Предложение по цене:
100 грн
Стоимость выезда на объект:
бесплатно
Смогу приступить к работе:
27 июля 2015 г.

Добрый вечер, наша бригада выполнит ремонт, требуется посмотреть объект, для составления сметы, и обсудить детали. Работаем без посредников.

23.07.2015 г. в 12:09

Рейтинг: 95
Отзывы: 0

Предложение по цене:
1 грн
Стоимость выезда на объект:
бесплатно
Смогу приступить к работе:
24 июля 2015 г.

Здравствуйте! Наша бригада имеет в своем составе специалистов по каждому из перечисленных видов работ. Можем предложить Вам решение комплексного ремонта. Обсудить строки, цены на наши услуги и прочие детали можно по телефону 0677187185. Александр.

09.08.2015 г. в 04:19

Рейтинг: 113
Отзывы: 0

Предложение по цене:
скрыто
Стоимость выезда на объект:
скрыто
Смогу приступить к работе:
скрыто
Предложение скрыто
Комментарии отсутствуют.
Обратите внимание
на рейтинг мастеров
Чем выше рейтинг мастера, бригады или компании, тем выше вероятность получения качественных работ.
Выбирая PRO мастера вы получаете гарантию качества от портала Omastere.
Похожие тендеры