Все мастера и бригады
Украина

Нужны мастера?

Создайте заявку

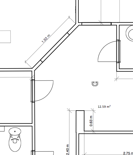
Срезать угол, увеличить хол

Добрый день,

Необходимо срезать угол комнаты чтобы увеличить хол. Стены из пазогребневого кирпича, не-несущие.

Ждем предложений.

Спасибо,

Геннадий

Украина, Киевская область, г. Киев

Тендер открыт

с 6.12.2011 по 13.12.2011

Бюджет

Прикрепленный файл: скачать

Заказчик

Hennady

Всего тендеров: 1

Зарегистрирован:
06.12.2011 г.

Контактные данные

Тендер закрыт.

Вы не можете ответить на тендер

Тендер закрыт или заказчик нашел исполнителя

Рейтинг: 94
Отзывы: 0

Готові віполнить Ваш заказ.

Виезд сотрудника для замеров бесплатній.

Звоните договоримся +30666063188 +30445929126

С уважением Павел Владимирович

06.12.2011 г. в 11:05

Рейтинг: 10
Отзывы: 0

097 6409203 Евгений Пожалуйста звоните!!

06.12.2011 г. в 11:06

Рейтинг: 19
Отзывы: 0

С делаем за 800гр чтоб недосталось муравям

07.12.2011 г. в 01:01

Рейтинг: 11
Отзывы: 0

Уточним детали: если только демонтаж до 10 м2 - то 700грн., чтобы не досталось Михайлу!))) Обращайтесь: 0632831717

08.12.2011 г. в 05:18

Рейтинг: 13
Отзывы: 0

да давайте завтра встретимся 0966203728 сергей викторович

Комментарии отсутствуют.
Обратите внимание
на рейтинг мастеров
Чем выше рейтинг мастера, бригады или компании, тем выше вероятность получения качественных работ.
Выбирая PRO мастера вы получаете гарантию качества от портала Omastere.
Похожие тендеры