Все мастера и бригады
Украина

Нужны мастера?

Создайте заявку

Стадия РД. Нужен конструктор.

Приветствую!

Сразу извеняюсь за резкий тон сообщения!

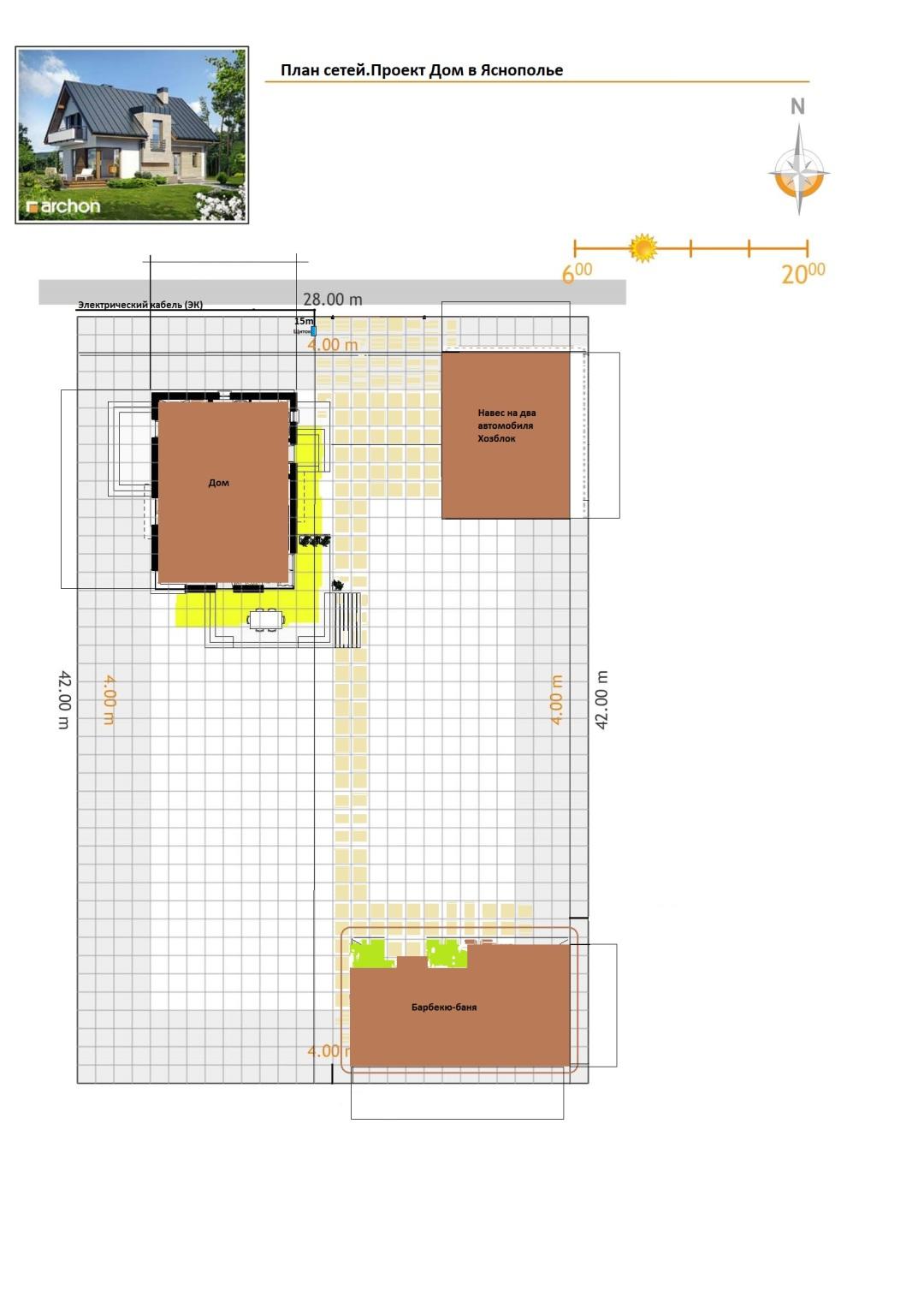
Нужна РД на дом который является симбиозом двух проектов. Дом без гаража. на участке навес и баня. Фундамент основного дома плитный в несьемной XPS опалубке (ушп dow). Фундамент бани мзлф.

Интересует стоимость(выслать по эл. почте) и четкое выполнение моих пожеланий.

Обязательно по плите расчеты и чертежи

План и сечения котлована.

План и сечения дренажных траншей с уклонами, расположением труб, колодцев, геотекстиля и засыпок.

План и сечения подушки.

План и уклоны канализации, вводов коммуникаций.

План и сечения пенопластовой опалубки.

План размещения труб водоснабжения.

План и сечения плиты/армирования.

План размещения труб и оборудования ТП.

С уважением, Алексей Владимирович!

Украина, Киевская область, г. Киев

Тендер открыт

с 9.07.2013 по 16.07.2013

Бюджет

Прикрепленный файл: скачать

Заказчик

Алексей PIPRJ company

Всего тендеров: 5

Зарегистрирован:
07.07.2012 г.

Контактные данные

Тендер закрыт.

Вы не можете ответить на тендер

Тендер закрыт или заказчик нашел исполнителя

Рейтинг: 36
Отзывы: 0

выполним весь спектр проектных работ авторский и тех надзор

общестроительные работы

сети

комуникации

земляные работы

0975067414

Комментарии отсутствуют.
Обратите внимание
на рейтинг мастеров
Чем выше рейтинг мастера, бригады или компании, тем выше вероятность получения качественных работ.
Выбирая PRO мастера вы получаете гарантию качества от портала Omastere.
Похожие тендеры