Все мастера и бригады
Украина

Нужны мастера?

Создайте заявку

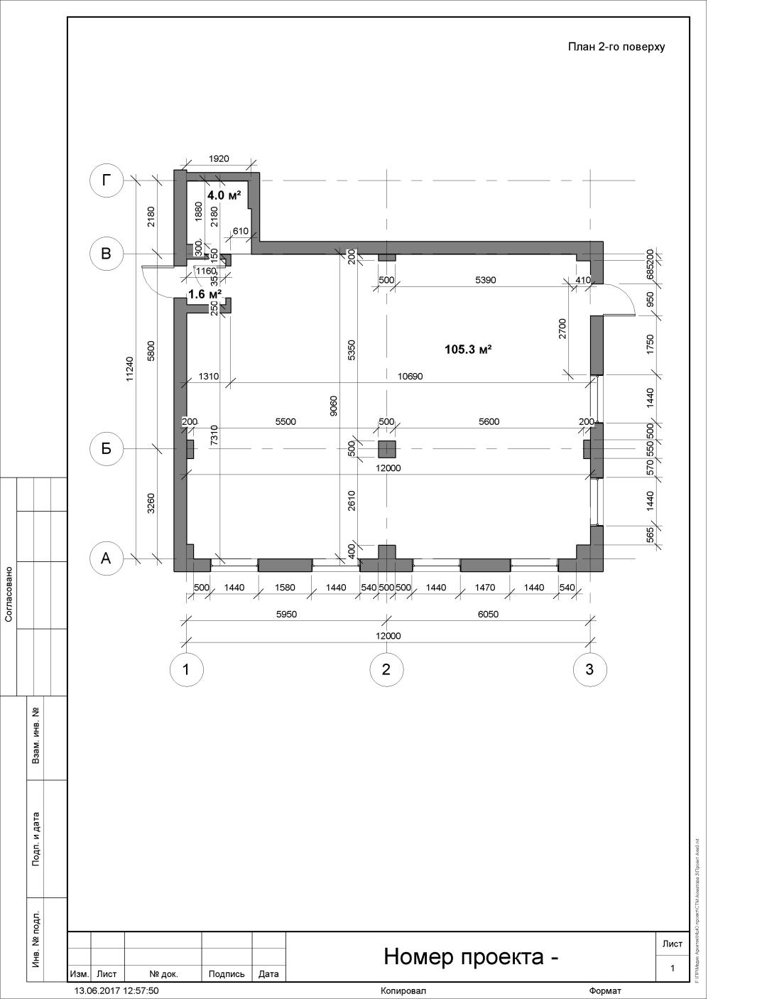
Стяжка пола в нежилом помещении 105 м2 в Киеве на Позняках

Интересует заливка пола ( стяжка ) в помещении 105 м2.

Укладка пенопласта с армированной сеткой и далее сама стяжка 7 см.

Интересует Ваша цена за такую работу за м2. Без учета стоимости материалов .

Или полная цена уже с учетом материалов.

Сроки , условия оплаты.

Помещение находится на втором этаже нежилого здания на Позняках .

Ждем Ваше коммерческое предложение

Во вложении схема помещения . Сейчас в помещении вообще нет внутренних стен.

Спасибо

Украина, Киевская область, г. Киев

Тендер открыт

с 16.08.2017 по 15.09.2017

Бюджет

Прикрепленный файл: скачать

Заказчик

Валерий

Всего тендеров: 1

Зарегистрирован:
16.08.2017 г.

Контактные данные

Тендер закрыт.

Вы не можете ответить на тендер

Тендер закрыт или заказчик нашел исполнителя

23.08.2017 г. в 11:55

Рейтинг: 47
Отзывы: 0

Предложение по цене:
1 грн
Стоимость выезда на объект:
бесплатно
Смогу приступить к работе:
28 августа 2017 г.

Добрый день,необходимо уточнить некоторые детали,позвоните пожалуйста

Рейтинг: 94
Отзывы: 0

Предложение по цене:
16000 грн
Смогу приступить к работе:
31 августа 2017 г.

Стяжка машинная

Примеры моих работ Расценки на работы
Полусухая стяжка пола
45.00 грн / м2
Комментарии отсутствуют.
Обратите внимание
на рейтинг мастеров
Чем выше рейтинг мастера, бригады или компании, тем выше вероятность получения качественных работ.
Выбирая PRO мастера вы получаете гарантию качества от портала Omastere.
Похожие тендеры