Все мастера и бригады
Украина

Нужны мастера?

Создайте заявку

Устройство фундамента частного дома

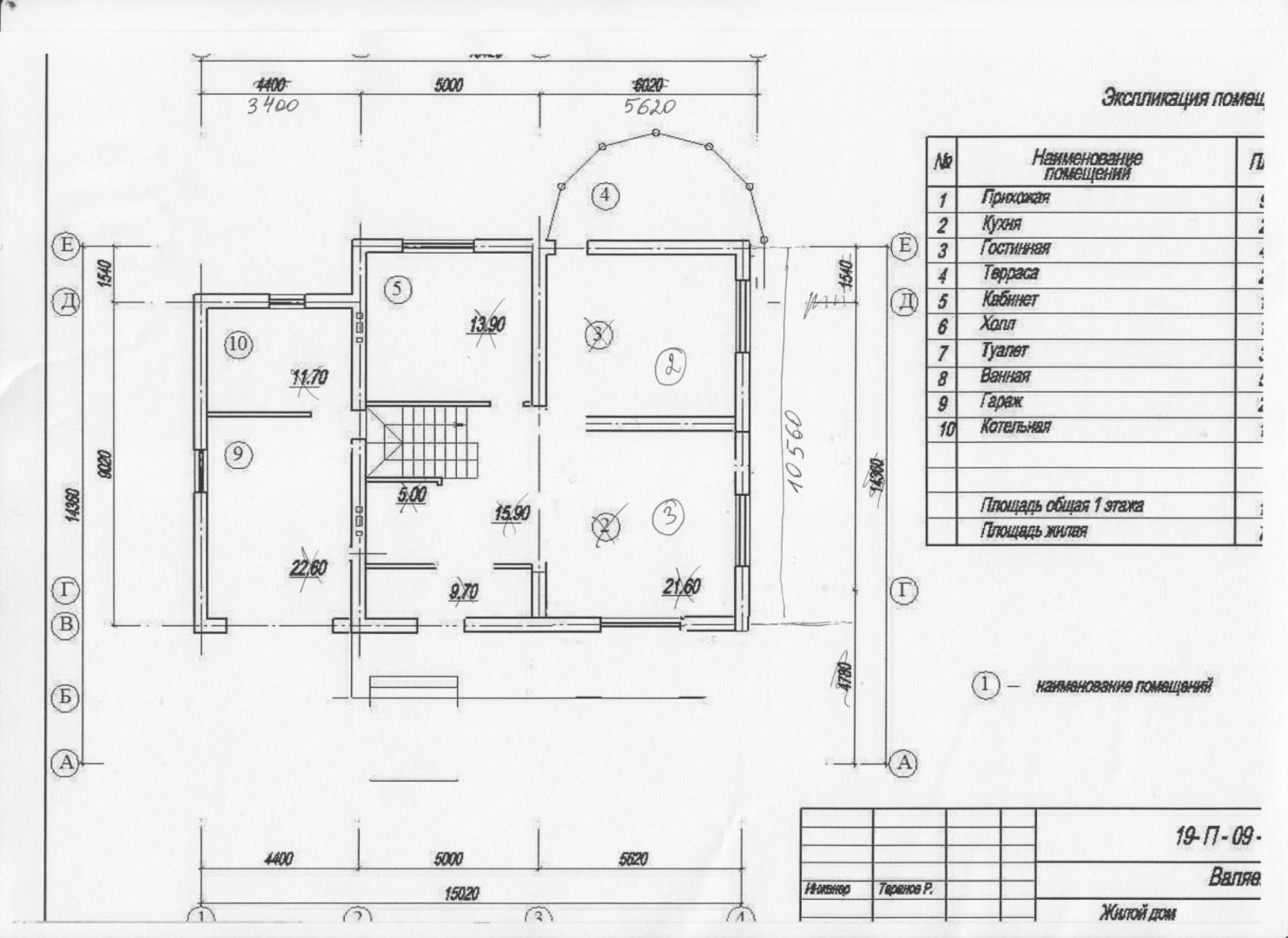
Необходимо сделать фундамент дома 14,02х10,56 c.Лычанка (около 25 км от Киева по житомирской трассе). Есть голый участок. Проекта нет. Интересуют все предложения по работам, материалам, доставке, срокам, ценам. Прилагаю чертеж первого этажа (если это поможет). Если будет нужно показать участок - с удовольствием это сделаю. Присылайте ваши предложения, рассмотрю с интересом.

Дом планируется в 2 этажа из пеноблока.

Украина, Киевская область, г. Киев

Тендер открыт

с 16.09.2011 по 23.09.2011

Бюджет

Прикрепленный файл: скачать

Заказчик

Гала

Всего тендеров: 1

Зарегистрирован:
16.09.2011 г.

Контактные данные

Тендер закрыт.

Вы не можете ответить на тендер

Тендер закрыт или заказчик нашел исполнителя

17.09.2011 г. в 06:46

Рейтинг: 21
Отзывы: 0

Подберем самый экономичный и надежный вариант. Тел.0672345695

Рейтинг: 21
Отзывы: 0

Поможем осуществить Ваш задум,звоните 063 605 59 05.цены Вас не розочаруют

17.09.2011 г. в 09:06

Рейтинг: 5
Отзывы: 0

Мы можем выполнить работы быстро,качественно,недорого.Звоните:067-441-27-59 Дмитрий

Рейтинг: 93
Отзывы: 0

Строительные работы, кровельные работы. Киев и область.

Бригада со своим инструментом выполняет все виды строительных работ:

землянные работы, фундаментные работы, строительные работы, кровельные работы, кровельные материалы (металлочерепица, битумная черепица, еврорубероид, и т.д.), ремонтно-отделочные работы (внутренние и наружные отделочные работы).

Вся бригада без вредных привычек!

Скидки на строительные материалы!

Гарантия! Доступные цены!

цены на строительные работы: скачать прайс-лист на строительные работы

м/т (096)838-51-68

www.stroimsya.com.ua

www.кровля.kiev.ua

kitoboi@ukr.net

Рейтинг: 60
Отзывы: 0

Поможем с фундаментом и можем выполнить полный комплекс под ключ.

С уважением

Борзаков Роман Георгиевич

Компания ТОВ "МБК"Ю-МАЙСТЕР"

http://www.yourmaster.kiev.ua

borzakov@yourmaster.kiev.ua

Тел:(044) 362-14-99

Факс: (044)406-07-77

Моб:(097)468-15-71

17.09.2011 г. в 12:20

Рейтинг: 10
Отзывы: 0

Здравствуйте!

1.разработка грунта для устройства ленточных фундаментов - 33м3

2.устройство монолитных ленточных фундаментов,бетон В20, - 41,5м3

Стоимость работ с материалами - 87 300 грн ( 2100грн\м3).

Стоимость работ без материалов- 26 975 грн ( 650грн\м3)

Продолжительность работ - 6 дней.

E-mail: monodom@mail.ru

Рейтинг: 39
Отзывы: 0

Поможем со всеми работами

начиная от фундамента заканчивая озеленением и благоустройством вашего двора..

063-747-16-57

Руслан

Рейтинг: 39
Отзывы: 0

Материал привезем. Дом построим. 067 403-91-29

Рейтинг: 16
Отзывы: 0

Бетон 300 м3

Пеноблок 250 м3

0674064739

Рейтинг: 69
Отзывы: 0

Гарантия качества +380675070605 Максим. +есть технология экономнее и качественнее и быстрее.Кирпичный завод,бетон,арматура все с первых рук.Кровельщики за них не стыдно.И показать есть что.Готовые и строящиеся объекты есть.Сруб тоже,если есть интерес(без гвоздя).

17.09.2011 г. в 11:07

Рейтинг: 53
Отзывы: 0

Звоните обсудем.есть вареант встретится у нас на рабочем объекте в Киеве. 0982440130 Николай

18.09.2011 г. в 08:44

Рейтинг: 33
Отзывы: 0

фундамент с "0"и "под ключ" 350 грн/м3 0982985485 Михаил

Рейтинг: 10
Отзывы: 0

Здравствйте! Для составления проекта и сметы необходимо встретиться на месте. Наша компания СК "Современная" специализируется на коттеджном строительстве. Реализуем проекты с нуля под ключ. Звоните - (067) 549-22-80.

Рейтинг: 5
Отзывы: 0

все виды работ с ноля под ключ 0663621089-Анатолий

Комментарии отсутствуют.
Обратите внимание
на рейтинг мастеров
Чем выше рейтинг мастера, бригады или компании, тем выше вероятность получения качественных работ.
Выбирая PRO мастера вы получаете гарантию качества от портала Omastere.
Похожие тендеры