Все мастера и бригады
Украина

Нужны мастера?

Создайте заявку

Восстановление сегмента бетонной кровли

Объект - котельная, Голосеевский район, Киев.

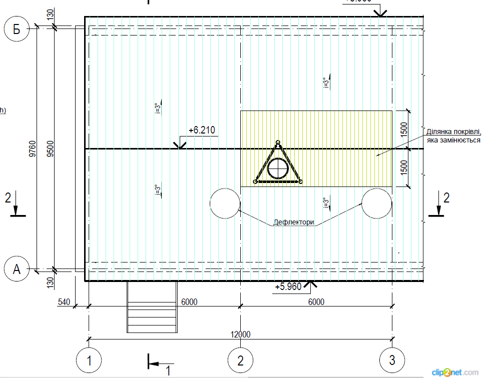
1. Заливка бетоном сегмента кровли - 6,5м на 3,5м

По торцу кровли в данном сегменте сварена конструкция из двутавра с поперечными ребрами жесткости. Конструкция подшита профлистом (3-4 мм). Сквозь данный сегмент кровли проходит опора дымохода, внутри - по центру опоры будет установлен вертикальный дымоход. Предполагается на профлист слой керамзита, заливка бетоном и гидроизоляции рубероидом в ровень с плоскостью кровли (возможно усиление слоя бетона арматурой с сварными соединениями к двутавру) .

2. Гидроизоляция сегмета кровки рубероидом - размер тот-же.

Работа должна быть выполнена до 25 января.

Украина, Киевская область, г. Киев

Тендер открыт

с 29.12.2015 по 8.01.2016

Бюджет

Прикрепленный файл: скачать

Заказчик

Сергій

Всего тендеров: 2

Зарегистрирован:
29.12.2015 г.

Контактные данные

Тендер закрыт.

Вы не можете ответить на тендер

Тендер закрыт или заказчик нашел исполнителя

Рейтинг: 93
Отзывы: 0

Предложение по цене:
1 грн
Стоимость выезда на объект:
бесплатно
Смогу приступить к работе:
03 января 2016 г.

можем выполнить даный обьем

1 с нашими материалами 15 000 грн

2 без наших материалов 5000-6000грн

но это предварительно я не видел самого обьекта и условий выполнения работ

с нами можно договориться звоните 066 44 66 315

желаю найти хорошего подрядчика

Примеры моих работ

Рейтинг: 86
Отзывы: 0

Предложение по цене:
6500 грн
Стоимость выезда на объект:
бесплатно
Смогу приступить к работе:
03 января 2016 г.

Посмотреть ,обсудить готов в любое удобное время 0687664542

Комментарии отсутствуют.
Обратите внимание
на рейтинг мастеров
Чем выше рейтинг мастера, бригады или компании, тем выше вероятность получения качественных работ.
Выбирая PRO мастера вы получаете гарантию качества от портала Omastere.
Похожие тендеры