Все мастера и бригады
Украина

Нужны мастера?

Создайте заявку

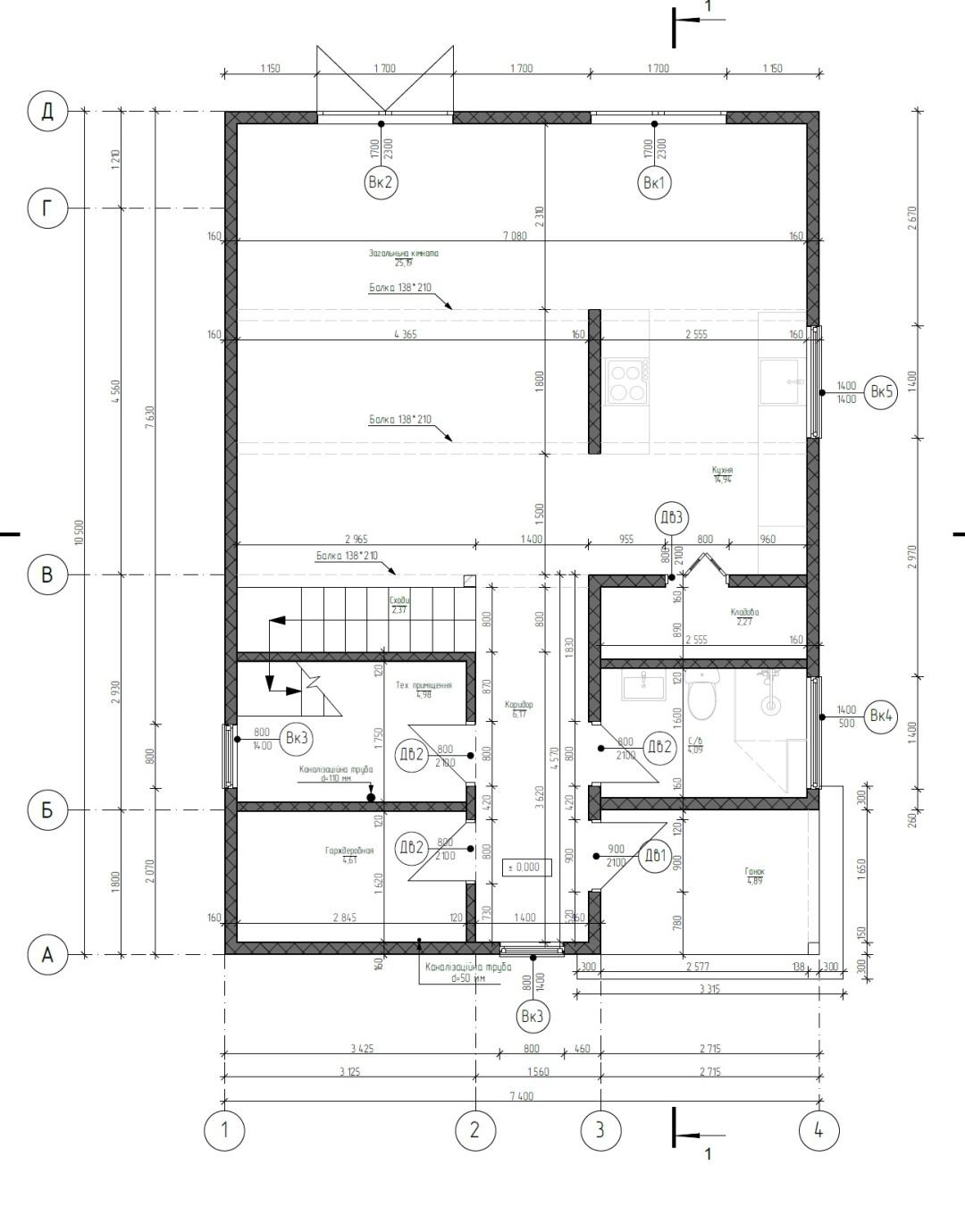
Штпатлевка в доме поверх гипсокартона

Необходимо произвести работы по шпатлевке первого этажа дома под покраску, плитку, обои поверх гипсокартона, без выравнивания.

Что в ходит в работу, сетка, грунтовка и все что нужно для качественной штукатурки.

Дом из СИП-панелей.

Общая площадь ориентировочна 155 кв.м.

Планировка первого этажа в прикрепленном файле.

Украина, Киевская область, г. Подгорцы

Тендер открыт

с 16.05.2016 по 26.05.2016

Бюджет

8000

Прикрепленный файл: скачать

Заказчик

Вадим

Всего тендеров: 1

Зарегистрирован:
16.05.2016 г.

Контактные данные

Тендер закрыт.

Вы не можете ответить на тендер

Тендер закрыт или заказчик нашел исполнителя

Рейтинг: 185
Отзывы: 0

Предложение по цене:
1500 грн
Стоимость выезда на объект:
бесплатно
Смогу приступить к работе:
18 мая 2016 г.

Здравствуйте...меня зовут Игорь...мы занимаемся всеми видами строительно-отделочных работ,включая электрификационные и сантехнические работы.

Наша специализация – ремонт квартир,домов под ключ,коих в Киеве мы уже сделали под сотню.

Работаем в сфере внутренней отделки уже более 13 лет,гарантируем максимально возможное качество работ,оперативность,порядочность и аккуратность.В наличии весь необходимый инструмент.

При желании можем показать квартиры в Киеве,где мы работали раньше..можно будет оценить качество работ воочию,а также пообщатся с нашими предыдущими заказчиками на предмет наших как профессиональных,так и человеческих качеств.

Сейчас есть квартиры в ЖК Лико Град и на Позняках.Также можно посмотреть квартиру в ЖК Парк Стоун и две квартиры на Лукьяновке,на Мельникова…Все перечисленные обьекты мы делали под ключ весной-летом…заказчики пока там не вьехали еще…ключи находятся у меня…так что посмотреть на качество нашей работы можем практически в любое время.

Имеем богатый опыт работ по дизайн-проэктам.

По расценкам:

-маячная штукатурка стен 85 грн/м2

-кладка перестенков с газоблока 90 грн/м2

-монтаж подвесных прямых одноуровневых гипсокартонных потолков 90 грн/м2

-шпаклевка потолков 50 грн/м2

-шпаклевка стен 45 грн/м2

-стеклохолст на потолок 45 грн/м2,на стены 35 грн/м2

-покраска потолков 30 грн/м2,стен 30 грн/м2

-укладка плитки на стены 180 грн/м2,на пол 160 грн/м2

-поклейка обоев 45 грн/м2

-укладка ламината 45 грн/м2

-монтаж припотолочного багета (с покраской),приполового плинтуса 25 грн/м.п.

-точка электрики 90 грн/точка

-точка разводки воды 380 грн

-точка канализации 180 грн

Выезд к вам на обьект,обмер и просчет детальной поэтапной сметы работ - бесплатно.Попутно составим Вам перечень и стоимость необходимого строительного материала.

Если заинтересовало - 096 687 10 10

Сайт – http://porastroit.com.ua

Примеры моих работ

Рейтинг: 81
Отзывы: 0

Здравствуйте Вадим!

Наша кампания готова предоставить Вам весь комплекс строительных услуг по обустройству Вашего дома.

Наши мастера проживают в Обуховском р-н. Более детально пи встрече или по тел: +38(096)907-81-99;

С уважением Сергей.

Рейтинг: 139
Отзывы: 0

Предложение по цене:
1 грн
Стоимость выезда на объект:
11 грн
Смогу приступить к работе:
18 мая 2016 г.

Можем выполнить хорошо и быстро. Нас 4 человека. Не вижу куда Вам позвонить... Набирайте меня, если нужно делать, 0932057959. Или по адресу 2057959@ukr.net

Как можно приехать посмотреть и обсудить условия работы?

18.05.2016 г. в 07:54

Рейтинг: 101
Отзывы: 0

Предложение по цене:
скрыто
Стоимость выезда на объект:
скрыто
Смогу приступить к работе:
скрыто
Предложение скрыто
19.05.2016 г. в 10:46

Рейтинг: 70
Отзывы: 0

Предложение по цене:
10000 грн
Стоимость выезда на объект:
1 грн
Смогу приступить к работе:
23 мая 2016 г.

Здравствуйте звоните будем договариваться 063581 00 05.

Комментарии отсутствуют.
Обратите внимание
на рейтинг мастеров
Чем выше рейтинг мастера, бригады или компании, тем выше вероятность получения качественных работ.
Выбирая PRO мастера вы получаете гарантию качества от портала Omastere.
Похожие тендеры